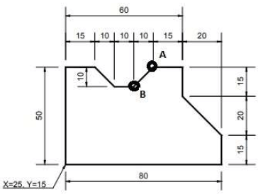
Em desenho técnico as coordenadas cartesianas auxiliam no desenvolvimento de desenhos técnicos. No conceito mais abrangente, temos as coordenadas absolutas, relativas e relativas polares. Com o auxílio do software AutoCad e utilizando das coordenadas relativas, qual seria a coordenada do ponto A para o ponto B?
