Magna Concursos
Questões
Planos
Entrar
Entrar
Criar Conta
Respondida
214894
Ano:
2010
Disciplina:
Engenharia Civil
Banca:
Consulplan
Orgão:
Pref. Campo Verde-MT
Provas:
Fiscal
Provas
×
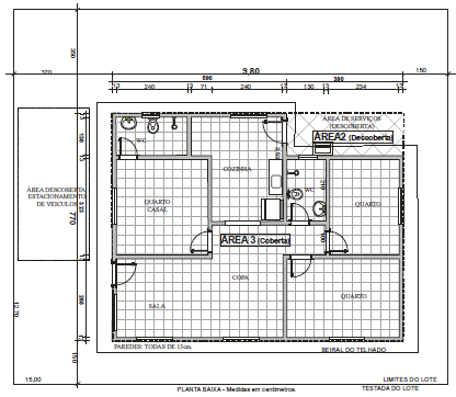
Conforme define o Código de Obras de Campo Verde, analise a planta a seguir e seus dados, marque a alternativa correta ciente de que (
Área 2
= Área de serviços;
Área 3
= Área coberta em laje e
Área 1
= Soma das Áreas 2 e 3)
A
A
Área Principal
seria a Área 2.
B
A
Área Edificada
seria a Área 1.
C
A
Área Livre
seria a Área 2.
D
A
Área Útil
seria a Área 3.
E
A
Área Real
do Pavimento seria a Área 1.
Resolver
Comentários
0
×
Cadernos
×
Flashcards
×
Estatísticas
×
Reportar um erro
×
Provas
Questão presente nas seguintes provas
Fiscal
40 Questões
Resolver Prova
Publicar
Responder
Qual o problema da questão?
Selecione uma opção
Questão Desatualizada
Questão Repetida
Gabarito Errado
Outros Motivos
Mensagem
Enviar
Acessar
Criar Conta
Acesse sua Conta
Google
Facebook
Esqueci minha senha
Acessar
Ainda não tem conta?
Crie uma
!
Crie uma Conta
Criar Conta
Olá, para continuar, precisamos criar uma conta!
É
rápido
e
grátis
.
Google
Facebook
Concordo com os
Termos de Uso
Criar
Já tem uma conta?
Acesse aqui