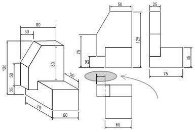
Um desenho técnico deve conter todas as informações relativas ao projeto da peça. Nesse contexto, analise a figura a seguir.

Qual o valor da cota da vista superior não especificada destacada na figura?

Qual o valor da cota da vista superior não especificada destacada na figura?
Provas
Questão presente nas seguintes provas