1670276
Ano: 2018
Disciplina: Desenho Técnico e Industrial
Banca: ACEP
Orgão: Pref. Aracati-CE
Disciplina: Desenho Técnico e Industrial
Banca: ACEP
Orgão: Pref. Aracati-CE
Provas:
Nos programas gráficos para desenho em computador — Desenho Auxiliado por Computador (CAD) — os antigos traçados a lápis ou caneta sobre o papel são substituídos por marcações de pontos na tela ou comandos simples que definem os comprimentos ou características das linhas.
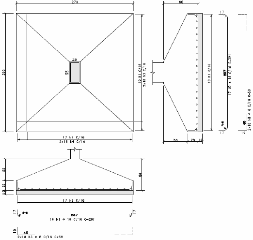
Sobre a sapata em concreto armado mostrada na figura abaixo, assinale a alternativa correta.
