
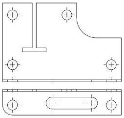
A Figura acima é a vista isométrica, no primeiro diedro, de um suporte confeccionado em chapa, com seis furos passantes, um rasgo oblongo, um rasgo em “T” e um recorte em semicírculo.
A vista frontal e a vista superior, no primeiro diedro, dessa peça são