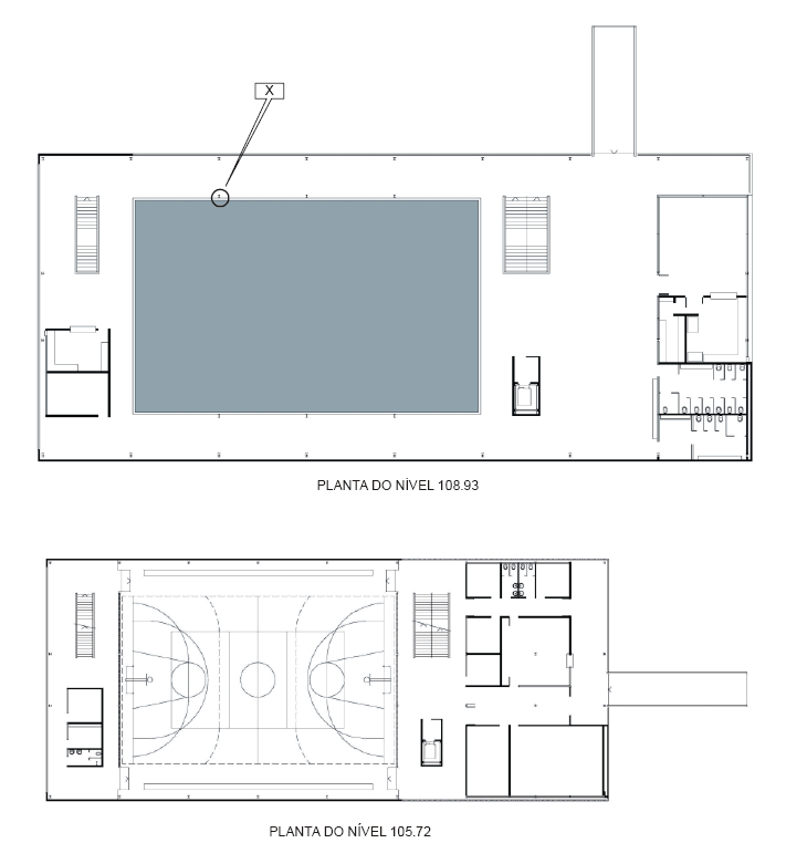
Observe a Escola Estadual Jardim Angélica III (2004, 2006), projeto do escritório paulista Núcleo de Arquitetura.



Analisando-se a relação entre estrutura metálica, distribuição na planta dos dois pavimentos superiores e o corte da escola, constata-se que o elemento construtivo assinalado com um X é: