
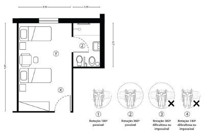
Considerando o conforto ergonômico na circulação pelo ambiente, ilustrado acima (*), assinale a alternativa que apresenta a associação correta entre as posições X, Y e Z no espaço e as rotações 1, 2, 3 e 4 indicadas para um cadeirante. (ver imagem ampliada na página 16)
(*) Fonte: Ilustração composta para a questão, construída a partir da inspiração da Revista Brasileira de Ergonomia, v.7, n.3.