
G. Cavalin e S. Cervelin. Instalações elétricas prediais. Editora Érica, 17.ª ed., São Paulo, 2007, p. 197 (com adaptações).
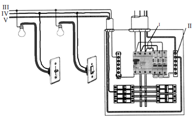
A figura acima ilustra um circuito de iluminação e o quadro de distribuição ao qual ele está ligado, todos pertencentes a uma instalação elétrica predial em baixa tensão. No quadro de distribuição destacam-se os barramentos e os condutores de fase (dois chegando ao quadro), neutro e de proteção, que interligam os barramentos. Com base nessas informações, julgue o item a seguir.
No circuito de iluminação, os condutores neutro e de fase correspondem, na figura, aos números III e V, respectivamente.
Provas
Questão presente nas seguintes provas
Perito Criminal - Engenharia Elétrica ou Eletrônica
120 Questões