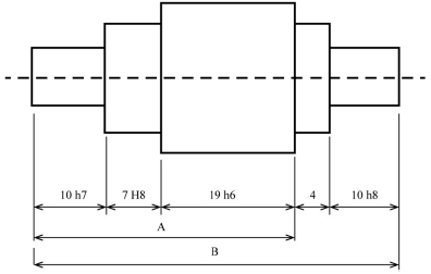
A figura seguinte mostra o desenho técnico de uma peça mecânica: um eixo com seções cilíndricas de diâmetros e comprimentos diferentes. As dimensões da peça, com suas respectivas cotas na direção do eixo de revolução, estão mostradas na figura, juntamente com suas tolerâncias, todas em milímetros (mm).

Com base nessas informações, julgue o item a seguir.
A cota B pode ser deixada sem indicação da respectiva tolerância. Nesse caso, esse comprimento deverá ser ajustado na fabricação, a partir dos valores das outras cotas.