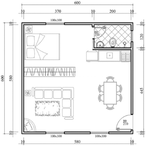
Observe a figura abaixo.

A quantidade de blocos cerâmicos de 6 furos (9x14x24cm), assentados com furos na horizontal, para elevar as paredes da edificação representada na planta baixa acima, considerando um pé direito de 2,80m, uma espessura de argamassa de 1cm nas juntas horizontais e junta seca na vertical, sem descontar os vãos das esquadrias, é de aproximadamente