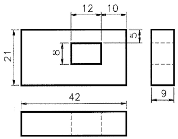
Analise o desenho técnico a seguir.

Com base nos dados acima, quais são as cotas que definem o tamanho do furo?
Provas
Questão presente nas seguintes provas
Corpo Auxiliar de Praças - Desenho Mecânico
50 Questões
Analise o desenho técnico a seguir.

Com base nos dados acima, quais são as cotas que definem o tamanho do furo?