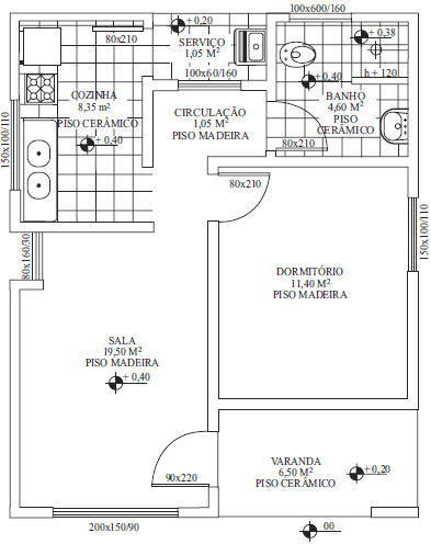
Observe a planta baixa de uma residência e analise as afirmações.

I. As cotas dos pisos da cozinha e do banheiro são iguais, mas diferentes das cotas da sala e da varanda.
II. As portas internas medem 80 cm e as externas medem 90 cm.
III. As alturas do peitoril das janelas da cozinha, do quarto e da sala medem respectivamente: 1,10 m, 1,10 m e 0,90 m.
Está correto o contido em
Provas
Questão presente nas seguintes provas