- Sistemas e Processos Construtivos
- Materiais de construção em Edificações
- Estudos Preliminares
- Estruturas nos Sistemas e Processos Construtivos
- Desenho Técnico em Edificações

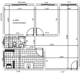
O proprietário dessa residência deixou para construir um dos quartos após a conclusão da obra. Dada a seção transversal de todas as vigas baldrame 12 x 30 cm, o volume total de concreto a ser utilizado nas vigas baldrame V4 e V9 será de, aproximadamente,
Provas
Questão presente nas seguintes provas