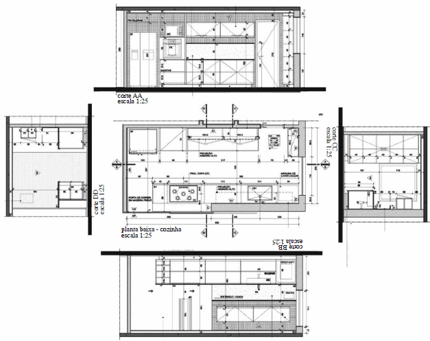
Os desenhos seguintes correspondem à arquitetura de interiores de
uma cozinha. Os cortes, organizados ao redor da planta baixa, foram
arranjados em rebatimento direto: o corte AA está na posição normal, o
BB está de cabeça para baixo, o CC foi girado para a esquerda e o DD,
para a direita.
Com base no projeto apresentado no texto, julgue o item que se segue, acerca de design de interiores e decoração.
Independentemente de suas dimensões, toda cozinha possui setores de armazenamento, preparo, cocção e lavagem. O leiaute da cozinha apresentada otimizou o armazenamento perto da entrada, ficando a lavagem junto à porta de correr e a cocção perto da janela, para garantir uma boa ventilação.


Com base no projeto apresentado no texto, julgue o item que se segue, acerca de design de interiores e decoração.
Independentemente de suas dimensões, toda cozinha possui setores de armazenamento, preparo, cocção e lavagem. O leiaute da cozinha apresentada otimizou o armazenamento perto da entrada, ficando a lavagem junto à porta de correr e a cocção perto da janela, para garantir uma boa ventilação.
Provas
Questão presente nas seguintes provas
Oficial Técnico de Inteligência - Arquitetura
150 Questões