Observe a imagem a seguir:

(Disponível em: https://organizacaotc.wordpress.com/wp-content/uploads/2014/04/cartilha-do-pedreiro1.pdf. Acesso em: outubro de 2024.)
No projeto de construção que a planta representa é possível verificar, EXCETO:
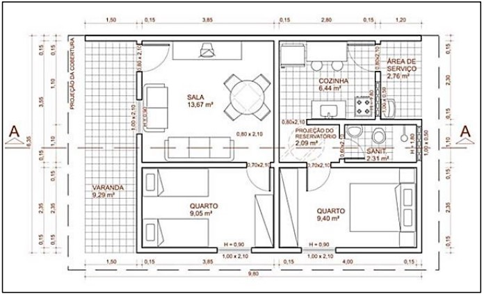
Observe a imagem a seguir:

(Disponível em: https://organizacaotc.wordpress.com/wp-content/uploads/2014/04/cartilha-do-pedreiro1.pdf. Acesso em: outubro de 2024.)
No projeto de construção que a planta representa é possível verificar, EXCETO: