A figura abaixo é uma representação de uma planta de situação.

Com base nas informações da planta acima, pode-se afirmar que a taxa de ocupação é de:
Provas
Questão presente nas seguintes provas
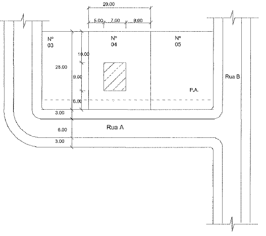
A figura abaixo é uma representação de uma planta de situação.

Com base nas informações da planta acima, pode-se afirmar que a taxa de ocupação é de: