Magna Concursos
2266092 Ano: 2009
Disciplina: Engenharia Civil
Banca: UFRJ
Orgão: UFRJ
Provas:

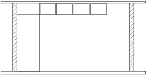
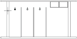
A alternativa que representa corretamente o corte A-A é

 

Provas

Questão presente nas seguintes provas

Técnico em Edificações

50 Questões