Magna Concursos
Questões
Planos
Entrar
Entrar
Criar Conta
Respondida
1080718
Ano:
2012
Disciplina:
Engenharia Civil
Banca:
IF-PE
Orgão:
IF-PE
Provas:
Engenheiro Civil
Provas
×
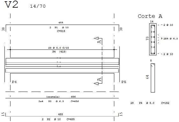
O desenho abaixo representa a armação de uma viga, de acordo com o que determina a Norma NBR07191 (Execução de desenhos para obras de concreto simples ou armado).
Qual o diâmetro da armadura de pele dessa viga?
A
10mm.
B
5mm.
C
5cm.
D
6,3cm.
E
6,3mm.
Resolver
Comentários
0
×
Cadernos
×
Flashcards
×
Estatísticas
×
Reportar um erro
×
Provas
Questão presente nas seguintes provas
Engenheiro Civil
40 Questões
Resolver Prova
Publicar
Responder
Qual o problema da questão?
Selecione uma opção
Questão Desatualizada
Questão Repetida
Gabarito Errado
Outros Motivos
Mensagem
Enviar
Acessar
Criar Conta
Acesse sua Conta
Google
Facebook
Esqueci minha senha
Acessar
Ainda não tem conta?
Crie uma
!
Crie uma Conta
Criar Conta
Olá, para continuar, precisamos criar uma conta!
É
rápido
e
grátis
.
Google
Facebook
Concordo com os
Termos de Uso
Criar
Já tem uma conta?
Acesse aqui