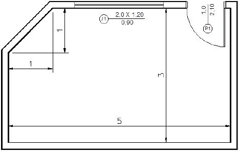
A figura representa uma planta baixa de uma sala, com parede interna de altura igual a 3,0 metros que receberá uma pintura.
Considere !$ \sqrt{2}=1,4 !$ e não considere quaisquer acréscimos por perda de tinta.

A área total de paredes que receberão a pintura é: