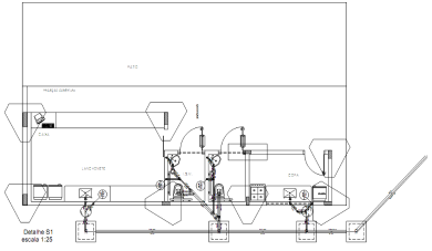
Observe a Figura 3 a seguir, e as conseguintes afirmativas

Figura 3 – Detalhe S1 Acervo UFGD
I. No detalhe não há presença de caixa de gordura
II. O detalhe representa o esquema hidráulico da edificação
III. O detalhe está compatibilizado com a fundação da edificação
IV. Há quatro ramais de ventilação
Considerando as afirmativas, assinale a alternativa correta:
Provas
Questão presente nas seguintes provas
Técnico de Laboratório - Instalações Prediais
50 Questões