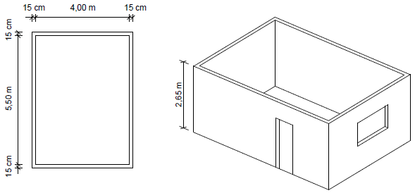
Considere um ambiente construído, conforme a figura abaixo, em alvenaria de tijolo cerâmico de dimensões em centímetros, 11x20x20, com revestimento argamassado de 20 mm (desconsiderar juntas horizontais e verticais de assentamento) em ambas as faces da alvenaria e esquadrias com dimensões de 2,10 x 0,80 m, para porta, e 1,50 x 1,00 m, para janela.

Para a construção desse ambiente, a quantidade de tijolos inteiros e o volume de argamassa de revestimento utilizados foram, respectivamente,