Magna Concursos
Questões
Planos
Entrar
Entrar
Criar Conta
Respondida
2458369
Ano:
2013
Disciplina:
Engenharia Civil
Banca:
FGV
Orgão:
ALEMA
Provas:
Auxiliar Legislativo - Bombeiro Hidráulico
Provas
×
Instalações em Engenharia Civil
Instalações Pluviais
Instalações Prediais - Água Fria
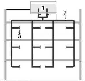
A figura a seguir apresenta o esquema de uma instalação hidráulica de um prédio.
Os elementos indicados com os números 1, 2 e 3 são conhecidos, respectivamente, como
A
cisterna, ramal e sub-ramal.
B
cisterna, barrilete e ramal.
C
reservatório superior, barrilete e ramal.
D
reservatório superior, sub-ramal e ramal.
E
reservatório superior, ramal e sub-ramal.
Resolver
Comentários
0
×
Cadernos
×
Flashcards
×
Estatísticas
×
Reportar um erro
×
Provas
Questão presente nas seguintes provas
Auxiliar Legislativo - Bombeiro Hidráulico
50 Questões
Resolver Prova
Publicar
Responder
Qual o problema da questão?
Selecione uma opção
Questão Desatualizada
Questão Repetida
Gabarito Errado
Outros Motivos
Mensagem
Enviar
Acessar
Criar Conta
Acesse sua Conta
Google
Facebook
Esqueci minha senha
Acessar
Ainda não tem conta?
Crie uma
!
Crie uma Conta
Criar Conta
Olá, para continuar, precisamos criar uma conta!
É
rápido
e
grátis
.
Google
Facebook
Concordo com os
Termos de Uso
Criar
Já tem uma conta?
Acesse aqui