2956098
Ano: 2023
Disciplina: Engenharia Civil
Banca: Consulplan
Orgão: Câm. Pouso Alegre-MG
Disciplina: Engenharia Civil
Banca: Consulplan
Orgão: Câm. Pouso Alegre-MG
Provas:
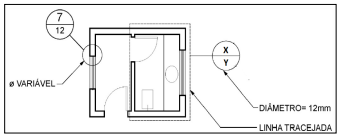
Na documentação técnica para projetos arquitetônicos e
urbanísticos, as marcações e os detalhes são representados
conforme a figura a seguir:
Neste caso, X e Y referem-se, respectivamente, a:
Neste caso, X e Y referem-se, respectivamente, a: