Magna Concursos
1060347 Ano: 2018
Disciplina: Engenharia Civil
Banca: FCC
Orgão: Pref. Macapá-AP
Provas:

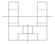
Considere as vistas superior e lateral esquerda abaixo.

enunciado 1060347-1

Representa a vista de frente, aplicando o corte AB, a figura:

 

Provas

Questão presente nas seguintes provas

Engenheiro Sanitarista

50 Questões