Observe a figura a seguir.

Determine as coordenadas XG e YG, em mm, do centro de gravidade do perfil L acima, considerando que as dimensões indicadas na figura estão representadas em mm, e assinale a opção correta.
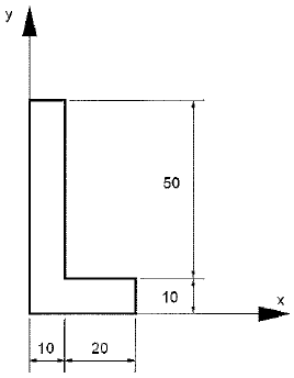
Observe a figura a seguir.

Determine as coordenadas XG e YG, em mm, do centro de gravidade do perfil L acima, considerando que as dimensões indicadas na figura estão representadas em mm, e assinale a opção correta.