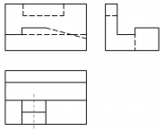
Analise esta peça, representada em perspectiva isométrica.

Assinale a alternativa que apresenta essa peça representada em vistas ortográficas.
Provas
Questão presente nas seguintes provas
Analise esta peça, representada em perspectiva isométrica.

Assinale a alternativa que apresenta essa peça representada em vistas ortográficas.