Magna Concursos
116067 Ano: 2012
Disciplina: Edificações
Banca: OBJETIVA
Orgão: EPTC
Provas:

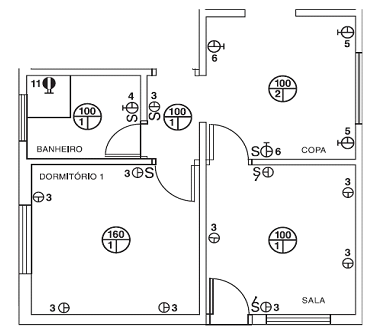
Assinalar a alternativa que apresenta quantos circuitos estão representados na figura abaixo:

enunciado 116067-1

 

Provas

Questão presente nas seguintes provas

Agente - Apoio Operacional

50 Questões