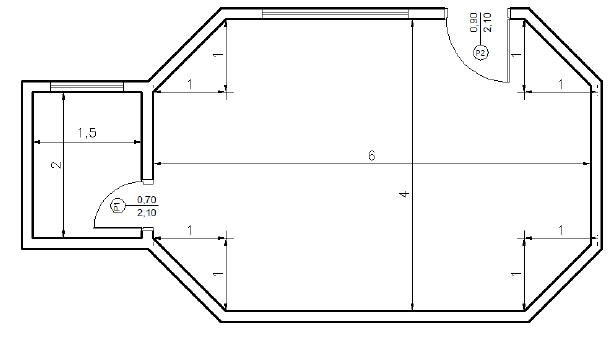
A planta baixa de uma sala comercial está representada na figura a seguir. Na sala e no banheiro será assentado o mesmo piso, que também irá compor o rodapé. Considere que o rodapé tem 10 cm de altura, e que a compra do piso deverá ser feita considerando um acréscimo de 10% para compensar perdas. Considere √2 = 1,4

A área total de piso que deve ser adquirida é: