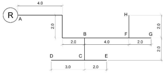
A figura a seguir apresenta a rede de abastecimento de água de
uma cidade (dimensões em km).
Sabendo que a vazão no reservatório R é de 92L/s e desprezando as perdas de carga ao longo da rede, a vazão no trecho BF da rede é de
Sabendo que a vazão no reservatório R é de 92L/s e desprezando as perdas de carga ao longo da rede, a vazão no trecho BF da rede é de
Provas
Questão presente nas seguintes provas