Magna Concursos
654032 Ano: 2019
Disciplina: Engenharia Civil
Banca: UFAC
Orgão: UFAC
Provas:
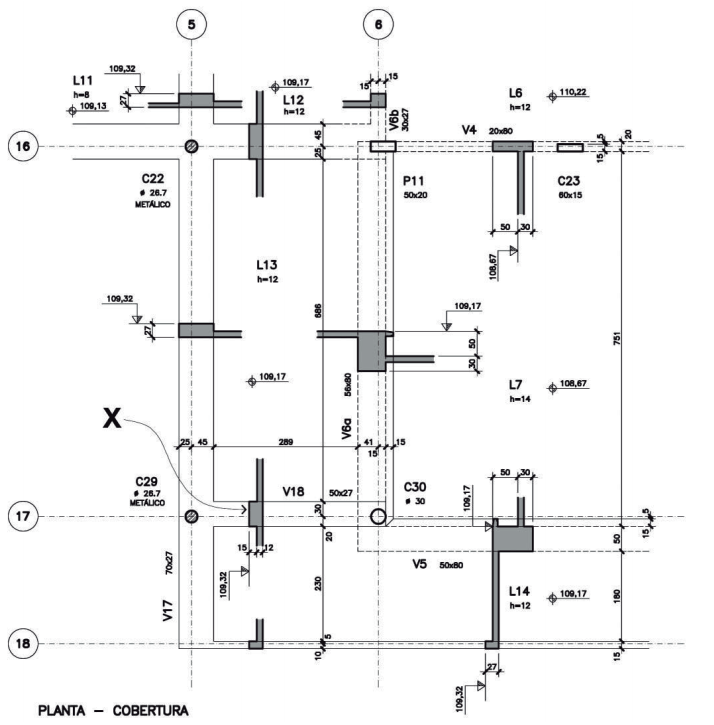
Nos projetos de estruturas, a planta de formas deve mostrar a posição dos elementos estruturais, identificá-los por nome ou número e indicar suas dimensões.
enunciado 654032-1


O elemento estrutural assinalado com o X na planta de forma acima é:

 

Provas

Questão presente nas seguintes provas

Engenheiro Civil

60 Questões