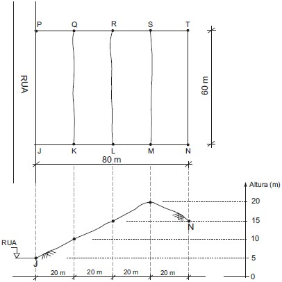
Para realizar os estudos de viabilidade para a construção de uma edificação, foram solicitados detalhes do local e recebidos apenas os croquis das curvas de nível e seção transversal a seguir.

Dados: A seção transversal JN é constante em todo terreno até PT.
Considerando-se que a cota final de terraplanagem é a mesma que a da rua e que os cortes, no perímetro do terreno, serão verticais, o volume escavado, em m3, está estimado em