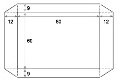
Um espelho retangular, cujos lados medem 80 cm e 60 cm, é totalmente contornado por uma moldura de madeira com 9 cm de largura no lado maior e 12 cm de largura no lado menor, sendo que os cantos formam triângulos retângulos congruentes, conforme mostra a figura.

O perímetro externo dessa moldura mede
Provas
Questão presente nas seguintes provas