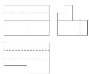
Observe a seguinte perspectiva isométrica.

Assinale a alternativa que apresenta as vistas ortográficas CORRETAS da peça representada em perspectiva.
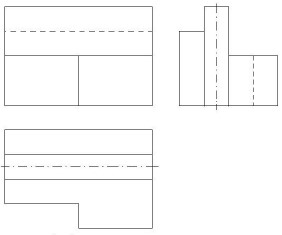
Observe a seguinte perspectiva isométrica.

Assinale a alternativa que apresenta as vistas ortográficas CORRETAS da peça representada em perspectiva.