Magna Concursos
1525586 Ano: 2003
Disciplina: Engenharia Civil
Banca: CESPE / CEBRASPE
Orgão: SAAE Alagoinhas-BA
Provas:

enunciado 1525586-1


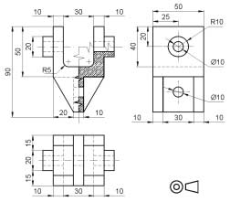
Com base na figura acima, julgue os itens seguintes.

O ressalto que contorna o furo passante na parte superior da peça está com suas dimensões e posição corretamente cotados.

 

Provas

Questão presente nas seguintes provas

Técnico - Desenhista

100 Questões