Magna Concursos
155670 Ano: 2018
Disciplina: Mecânica
Banca: CESGRANRIO
Orgão: Transpetro

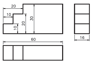
Se uma peça real tem, para maior dimensão, 6 mm, qual a escala usada no desenho abaixo que apresenta as medidas da peça em mm?

Enunciado 155670-1

 

Provas

Questão presente nas seguintes provas

Técnico de Manutenção - Mecânica

60 Questões