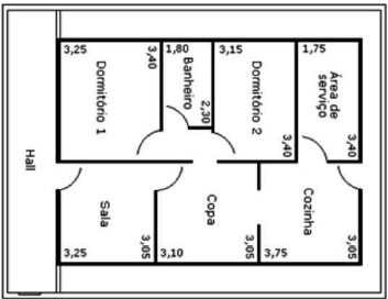
Tomando como base a planta baixa a seguir, determine o somatório das potências atribuídas às cargas de iluminação e tomadas de uso geral para a cozinha.

Considere:
Cos \( \varphi \) = 1 para cargas de ilumina
Cos \( \varphi \)= 0,8 para cargas de tomadas