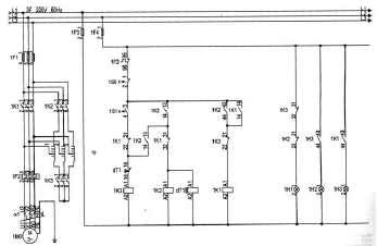
Considere o circuito de força e comando da chave de partida compensadora para um motor trifásico conforme apresentado a seguir. Sabendo-se que a mesma apresenta-se defeituosa uma vez que, ao ser acionada através da botoeira S1, o motor não inicia o processo de aceleração, passando diretamente para a condição normal de marcha no tempo selecionado através do relé de tempo dT1. A partir da observação verificada pelo técnico em automação pode-se afirmar que um defeito que acarreta o problema apresentado é:

Provas
Questão presente nas seguintes provas
Técnico de Laboratório - Automação Industrial
60 Questões