
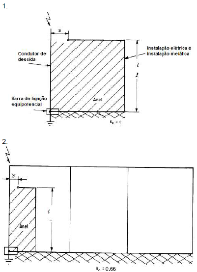
Em relação à proximidade do SPDA (Sistemas de Proteção contra Descargas Atmosféricas) com instalações, as figuras tratam-se, respectivamente,
Provas
Questão presente nas seguintes provas

Em relação à proximidade do SPDA (Sistemas de Proteção contra Descargas Atmosféricas) com instalações, as figuras tratam-se, respectivamente,