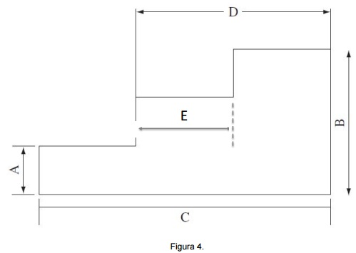
Um desenho de uma peça na forma de degrau é mostrado com as dimensões marcadas na Figura 4.

A distância corretamente dimensionada é
Um desenho de uma peça na forma de degrau é mostrado com as dimensões marcadas na Figura 4.

A distância corretamente dimensionada é