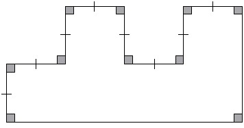
O perímetro de um decágono (polígono de 10 lados) é igual a 42 cm, e 8 de seus lados têm a mesma medida, conforme mostra a figura.

Sabendo que todos os ângulos desse polígono são retos, sua área é:
O perímetro de um decágono (polígono de 10 lados) é igual a 42 cm, e 8 de seus lados têm a mesma medida, conforme mostra a figura.

Sabendo que todos os ângulos desse polígono são retos, sua área é: