Magna Concursos
1685401 Ano: 2018
Disciplina: Engenharia Civil
Banca: PROGEP-FURG
Orgão: FURG
Provas:

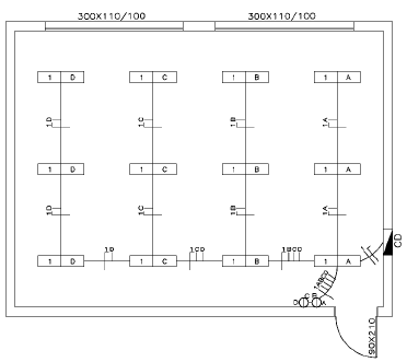
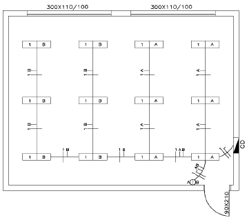
Considerando-se o projeto elétrico de uma sala de aula, que atenda aos requisitos do Regulamento Técnico da Qualidade para o Nível de Eficiência Energética de Edificações Comerciais, de Serviços e Públicas (RTQ-C), analise as plantas baixas a seguir e assinale a representação adequada.

 

Provas

Questão presente nas seguintes provas

Engenheiro Civil

25 Questões