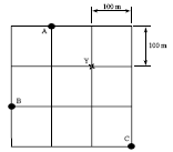
A figura abaixo representa uma seção horizontal de um depósito mineral contendo três furos de sonda (A, B, C). A análise do teor de cobre das amostras dessa seção forneceu os seguintes valores: A=0,9745%, B=1,2243% e C=1,0432%. O teor de cobre no ponto Y, interpolado segundo a metodologia do inverso do quadrado da distância, é

Provas
Questão presente nas seguintes provas