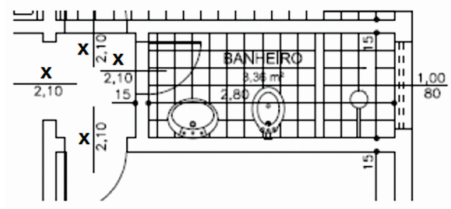
Atenção: Observe atentamente parte da planta baixa de uma edificação apresentada na figura abaixo:

Sobre essa figura, considerando a acessibilidade de deficientes físicos ao banheiro e demais cômodos da casa, responda às duas próximas quetões.
Sabendo que uma barra de apoio será colocada entre o lavatório e a bacia sanitária, a menor distância admissível entre esses equipamentos é de: