
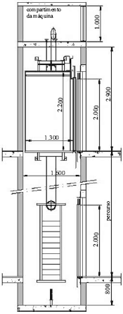
O desenho acima consiste em um corte esquemático de um poço de elevador que comunica pavimentos com pé-direito de 2,90 m. Com base nesse desenho, julgue os itens que se seguem.
Considerando que esse edifício tenha 3 pavimentos e que cada laje acabada tenha 20 cm de espessura, então o poço somado à casa de máquinas deverá ter 11,30 m, incluindo a laje que cobre a casa de máquinas.