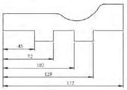
A figura mostra uma peça com as cotas em evidência. Verifica-se que estas cotas têm a mesma direção e esta é definida em relação a uma origem.

A classificação dessas cotas em relação ao critério de colagem é:
A figura mostra uma peça com as cotas em evidência. Verifica-se que estas cotas têm a mesma direção e esta é definida em relação a uma origem.

A classificação dessas cotas em relação ao critério de colagem é: