Dado o projeto de instalação hidrossanitária abaixo, relacione os componentes enumerados.
Em seguida, assinale a alternativa com a sequência correta.

( ) Tubo de queda
( ) Ramal de descarga
( ) Coluna de ventilação
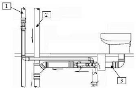
Dado o projeto de instalação hidrossanitária abaixo, relacione os componentes enumerados.
Em seguida, assinale a alternativa com a sequência correta.

( ) Tubo de queda
( ) Ramal de descarga
( ) Coluna de ventilação