Magna Concursos
1547557 Ano: 2005
Disciplina: Matemática
Banca: FJPF
Orgão: PM-RO
Provas:

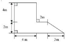
Observe a figura abaixo:

enunciado 1547557-1

A área desta figura corresponde a:

 

Provas

Questão presente nas seguintes provas

Policial Militar - Soldado

60 Questões