
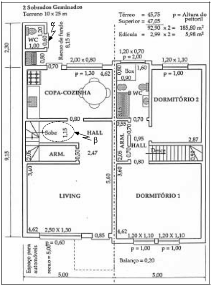
A. C. Borges et al. Prática das pequenas construções, v. 1 (com adaptações).
A figura acima corresponde a uma edificação residencial. Com base nessa figura, julgue o item que se segue.
O texto dentro da região delimitada pela linha tracejada fechada indicada pelo símbolo β especifica que a escada sobe 1,15 m.