Magna Concursos
Questões
Planos
Entrar
Entrar
Criar Conta
Respondida
1433393
Ano:
2010
Disciplina:
Desenho Técnico e Industrial
Banca:
IF-SUL
Orgão:
IF-SUL
Provas:
Professor PEBTT - Desenho
Provas
×
NBRs
NBR 6492: Representação de Projetos de Arquitetura
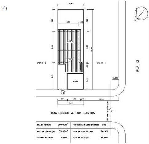
Observe as representações abaixo que são permitidas pela NBR 6492/1994 de Desenho Arquitetônico.
O nome destas representações, em ordem numérica, é
A
Planta de localização, Planta de cobertura, Planta de situação, Planta baixa, Corte e Fachada.
B
Planta de situação, Planta de localização, Planta baixa, Fachada, Planta de cobertura e Corte.
C
Planta de cobertura, Planta de localização, Planta de situação, Fachada, Planta baixa e Corte.
D
Planta baixa, Planta de situação, Planta de localização, Fachada, Planta de cobertura e Corte.
Resolver
Comentários
0
×
Cadernos
×
Flashcards
×
Estatísticas
×
Reportar um erro
×
Provas
Questão presente nas seguintes provas
Professor PEBTT - Desenho
40 Questões
Resolver Prova
Publicar
Responder
Qual o problema da questão?
Selecione uma opção
Questão Desatualizada
Questão Repetida
Gabarito Errado
Outros Motivos
Mensagem
Enviar
Acessar
Criar Conta
Acesse sua Conta
Google
Facebook
Esqueci minha senha
Acessar
Ainda não tem conta?
Crie uma
!
Crie uma Conta
Criar Conta
Olá, para continuar, precisamos criar uma conta!
É
rápido
e
grátis
.
Google
Facebook
Concordo com os
Termos de Uso
Criar
Já tem uma conta?
Acesse aqui