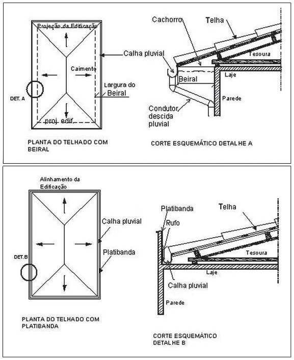
As Figuras abaixo apresentam a planta e o corte de um telhado.

Após analisar as Figuras, verifica-se que, dos elementos que compõem um telhado, aquele que apresenta suas descrição e função corretas é o(a)

Após analisar as Figuras, verifica-se que, dos elementos que compõem um telhado, aquele que apresenta suas descrição e função corretas é o(a)